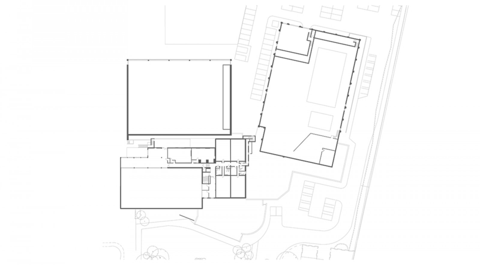
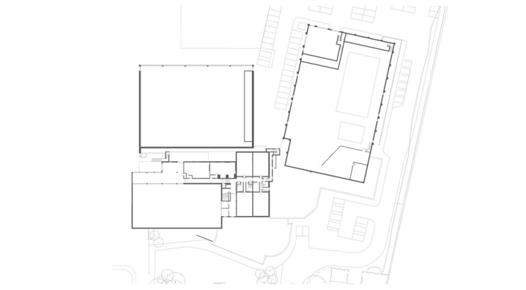
Thetford Leisure Centre

This building continues the practice's success in the winning of PFI projects. Won in conjunction with Parkwood PFI, this glass and steel clad pavilion brings new sports provisions and a new dynamic to this Norfolk town. The extension and refurbishment to the existing Thetford facility includes a 6 rink indoor bowls hall, fitness suite, treatment rooms, changing facilities, cafĂ©, creche facilities, and an external MUGA. 

We sought to make the ordinary an event, to make the inexpensive a thing of beauty and excitement. This design, like all our projects, was driven not only by its location, but the aspirations of those who would use it. In this we delight and from it comes our opportunity. The peeling entrance colonnade, the transparency, and the placing of the human being first in our designs are the themes that continue here.

  • Client − Breckland Council
  • Location − Thetford, Norfolk
  • Status − Completed
  • Structural Engineer − Furness Partnership