Pelhams Park, Bournemouth

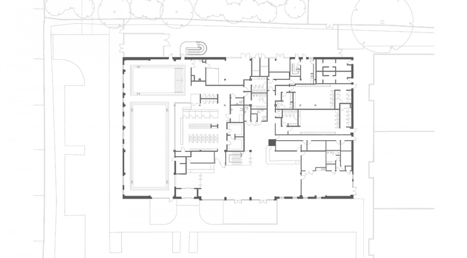
A refurbishment of an existing private leisure centre, this project was undertaken for Bournemouth Borough Council and completed in 2010. 

New pool tanks and changing facilities were constructed within the existing building shell, and the external fabric modified to bring natural light and views to the pool hall.  

  • Client − Bournemouth Borough Council
  • Location − Chaseside, Bournemouth
  • Status − Completed
  • Structural Engineer − Ramboll UK
  • M&E Consultant − Hoare Lea
  • Project Manager − P H Warr PLC
  • Quantity Surveyor − P H Warr PLC