Newport Leisure Centre

LA have been commissioned to design Newport’s latest landmark building: a new leisure, community, health and wellbeing centre on Usk Way, Newport, Gwent. The state-of-the-art building will be constructed on a brownfield site at the edge of the River Usk in the City Centre.

Accessed through a triple height foyer, facilities will feature new ways of engaging with water together within dry-side halls designed to create more active communities and encourage people of all ages to focus on health and movement.  The building will also offer a garden and an active exercise roof, with careful attention to human needs, biodiversity, and ecological benefits.

The new leisure centre will meet Wales LZC requirement BREEAM excellent standards, with sustainability and future-proofing at its core.

  • Client − Newport City Council
  • Location − Newport, Wales
  • Status − Ongoing

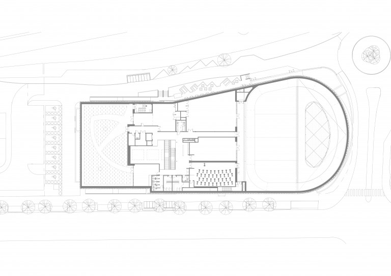
Ground Floor

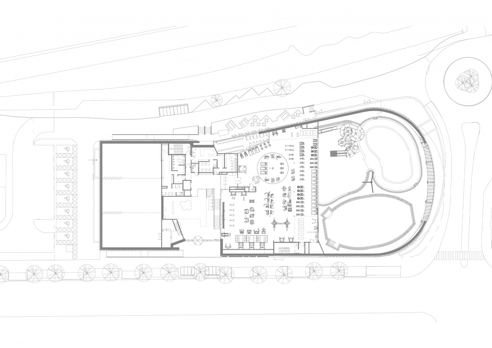
First Floor

Second Floor

Second Floor

First Floor

Ground Floor