Crook Log Leisure Centre

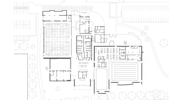
This centre formed a third part of Britain’s largest leisure PFI development for Parkwood PPP and the London Borough of Bexley Council. The other two facilities being Erith and Sidcup Leisure Centres. Crook Log contains a regional 8 lane 25m competition pool, a teaching/training pool with mobile floor and indoor and outdoor dry sports facilities. The design includes a sports hall, studios, fitness suite, and outdoor pitches. Work was completed in June 2005 and the building was handed over on time and within budget.

Crook Log and Erith Leisure Centres were recognized in 2006 for their financial achievements and for their simultaneous strong performance in the level of utilization of the centres.

  • Client − London Borough of Bexley
  • Location − Bexleyheath, London
  • Status − Completed
  • Structural Engineer − Ramboll UK
  • M&E Consultant − Max Fordham
  • Landscape − Urban Red Ltd