Winstanley & York Road, Wandsworth

The Winstanley & York Road Regeneration Project is a large-scale redevelopment initiative delivered through a Joint Venture between Wandsworth Council and Taylor Wimpey. This ambitious and far-reaching scheme aims to revitalise the area, providing major improvements to the physical environment with 2,500 new mixed-tenure homes centred around a new public park and a leisure and community facility designed by LA Architects.

The leisure project brief was developed through extensive stakeholder consultation and community engagement, ensuring it genuinely reflected local needs. The focus was on promoting physical activity and sports participation to encourage healthier and more active lifestyles across all ages, backgrounds and abilities.

The realised design presents an innovative social hub; an integrated facility bringing together a range of Council community services, including leisure, library and children’s centre, under one roof.  The result is a vibrant, welcoming and inclusive building, embedded within the local community, enhancing and connecting with the adjacent park and wider site, and delivering long-term economic, environmental and social sustainability.

 

 

  • Client − LB of Wandsworth and Taylor Wimpey Joint Venture
  • Location − Wandsworth, London
  • Status − Ongoing
  • Structural Engineer − Webb Yates and HTS
  • M&E Consultant − Hoare Lea
  • Landscape − Farrer Huxley and HTA
  • Quantity Surveyor − RLB

Walk through

Night Park View

Proposed First Floor Library

Youth Library and Cultural Centre over looking the new park

Children Centre and Nursery opening onto roof garden

New hall that can be used for concerts and a large number of events as well as sports

The developing Youth Cultural Centre including a truck cafe

View of the foyer and cafe opening into park

View from the main entrance

Main building as seen from the park

Main building as seen from the park

View of main hall

View of main hall

Main hall open to road

New Sketch Changing

New Sketch Foyer

New Sketch Library

New Sketch Library

New Sketch Pool

New Sketch Stair

New Sketch Studio

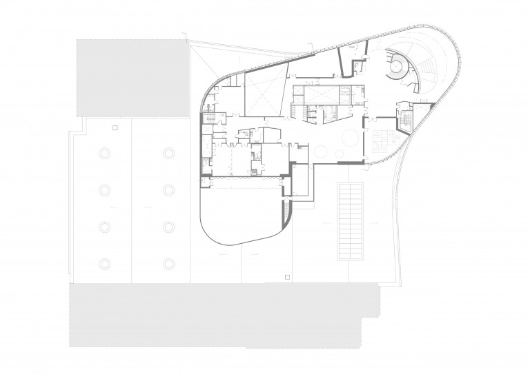
Ground Floor

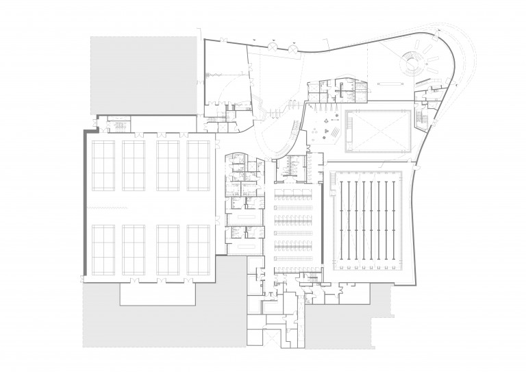
First Floor

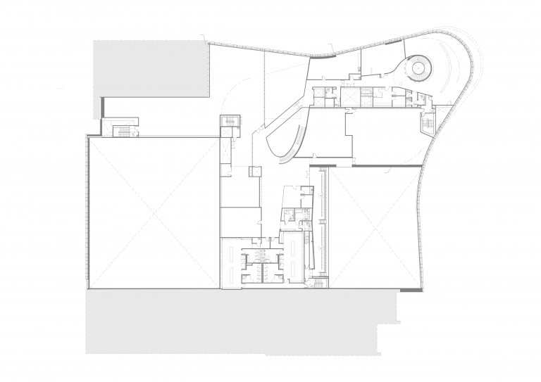
Second Floor