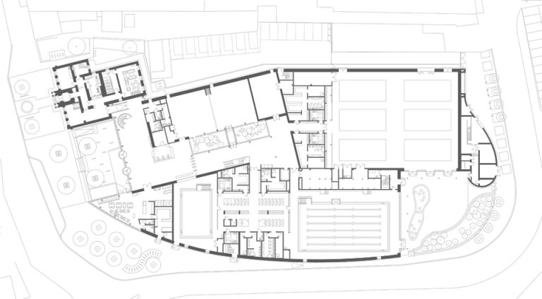
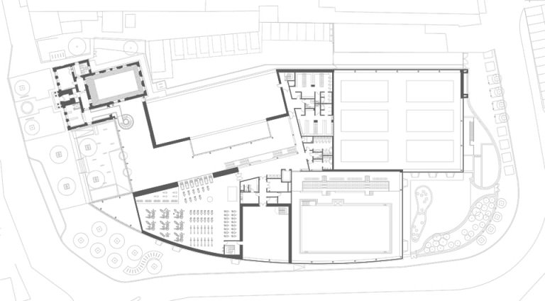
LA architects has delivered a new Community, Cultural and Leisure Centre in the heart of Irvine, providing an iconic modern facility for the people of North Ayrshire.
Part of the development incorporates the refurbishment of the Grade B listed, popular local landmark, ‘The Town House’, into a Cultural Centre. Works also included the repair and relocation of Irvine War Memorial closer to its original position immediately outside the Town House.
Facilities include a 6 court sports hall, 6 lane 25m pool, a teaching pool, studios, café and lounge area, reception and information points, and a foyer with spaces for art exhibitions, music recitals and local events. The Town House provides a new genealogy unit, arts exhibitions hall and community rooms.
The Centre forms a key part of the urban regeneration of the High Street, also delivered by LA, helping the town to develop a strong identity, attract more visitors and tourists, and ensure that the iconic building has a sustainable future.
"One of the notable strengths of our relationship with LA Architects has been their ability to interpret, and indeed determine, on our behalf, the operational requirements of the leisure centre they are designing for us. In the absence of an experienced leisure operator their absolute understanding of the operational environment has made them much more than a design team for us - they have become our advisers in relation to a range of design and operational issues, including facilities management and design for optimum user experience, lifecycle costs and income generation."
Dr Audrey Sutton - Head of Services North Ayrshire Council
One of the notable strengths of our relationship with LA Architects has been their ability to interpret, and indeed determine, on our behalf, the operational requirements of the leisure centre they are designing for us. In the absence of an experienced leisure operator their absolute understanding of the operational environment has made them much more than a design team for us - they have become our advisers in relation to a range of design and operational issues, including facilities management and design for optimum user experience, lifecycle costs and income generation.Dr Audrey Sutton Head of Services North Ayrshire Council