Clapham Leisure Centre

Clapham Leisure Centre was opened in January 2012 and forms part of the ‘Clapham One’ project, a wider regeneration scheme in south-west London that includes a new library and residential developments. The centre replaced an ageing 1920s leisure complex, and provides up-to-date facilities that are tailored to the needs of the local community.

The project grew out of detailed consultations with the council, the public, developers and stakeholders and since opening it has been operating at full capacity with some 30,000-35,000 visitors per month.

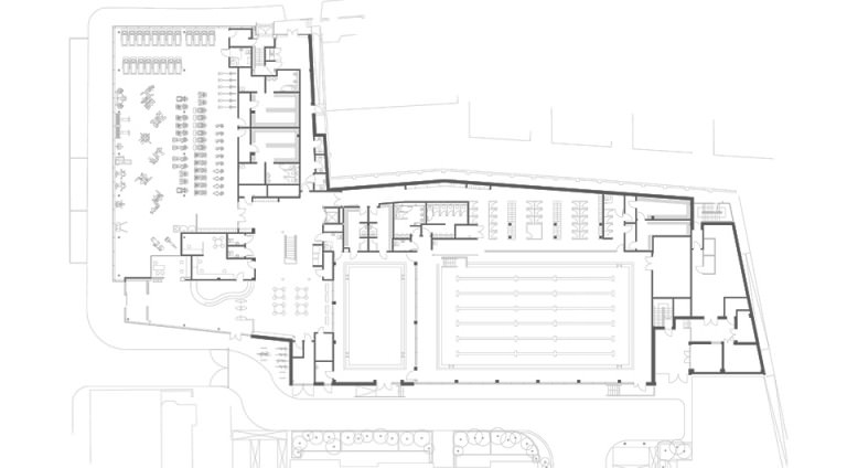
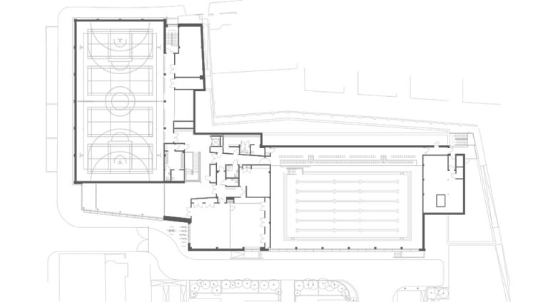
The facilities include a 6 lane 25m pool (with boom and movable floor), secondary pool (with movable floor), spectator seating, 4 court sports hall, fitness suite, exercise studios, junior climbing wall and café.

  • Client − London Borough of Lambeth
  • Location − Clapham, London
  • Status − Completed
  • Structural Engineer − PEP
  • M&E Consultant − Slender Winter Partnership
  • Landscape − Form Associates