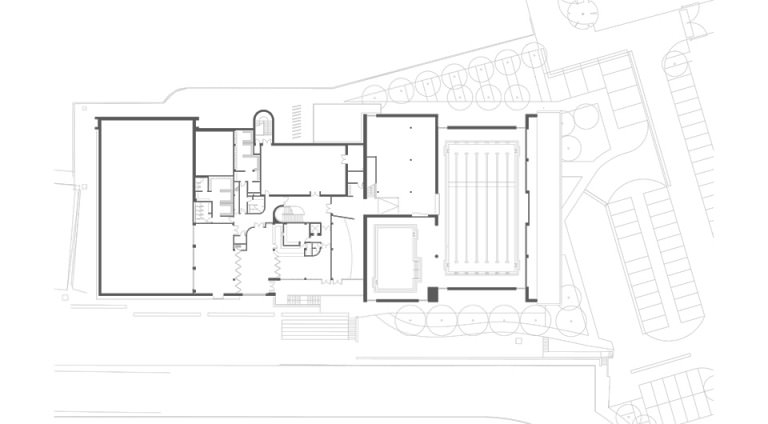
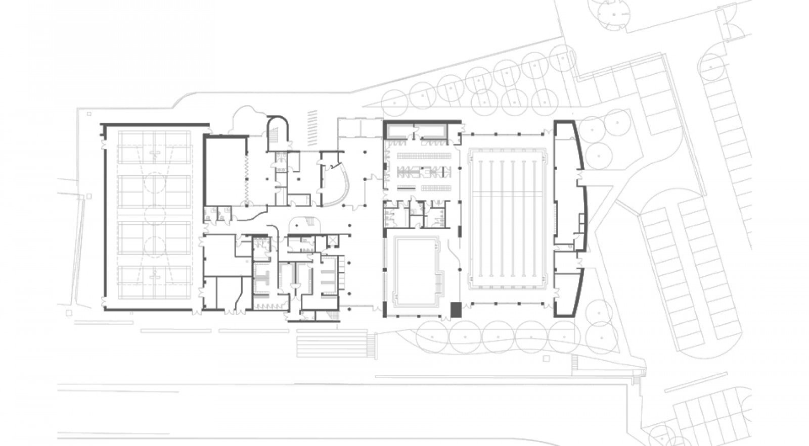
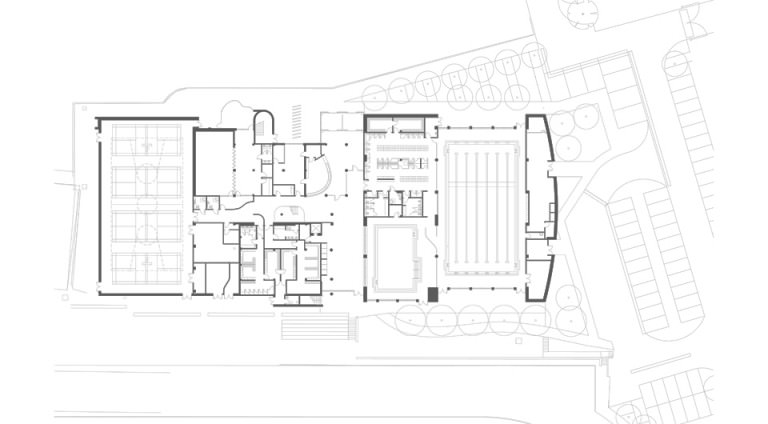
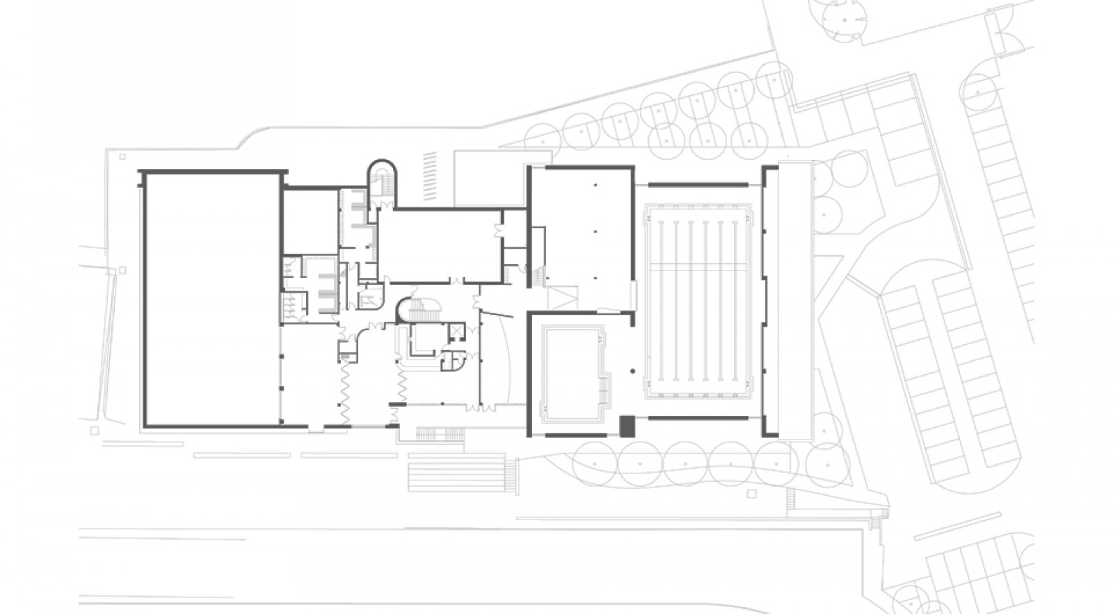
Erith Leisure Centre

This sports centre formed part of the PPP project for the London Borough of Bexley. The project undertook the full refurbishment of the existing centre and added a new pool facility.  It was delivered on a restrictive budget with the existing centre fully operational throughout the contract. 

LA adopted a simple elegant solution and drove that concept through the whole design. This has achieved a sophisticated building where every detail and element of design has been fully considered by the whole team.  

  • Client − London Borough of Bexley
  • Location − Erith, London
  • Status − Completed
  • Structural Engineer − Ramboll UK
  • M&E Consultant − Max Fordham
  • Landscape − Urban Red Ltd