Coronation Square

Coronation Square presents a unique opportunity to make a significant contribution to Leyton by enhancing the area’s sport, leisure, nursery and health provision alongside retail, residential and new public realm.

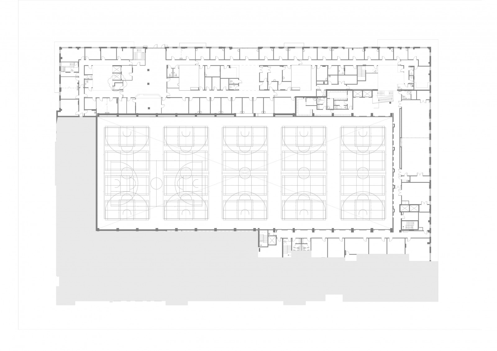
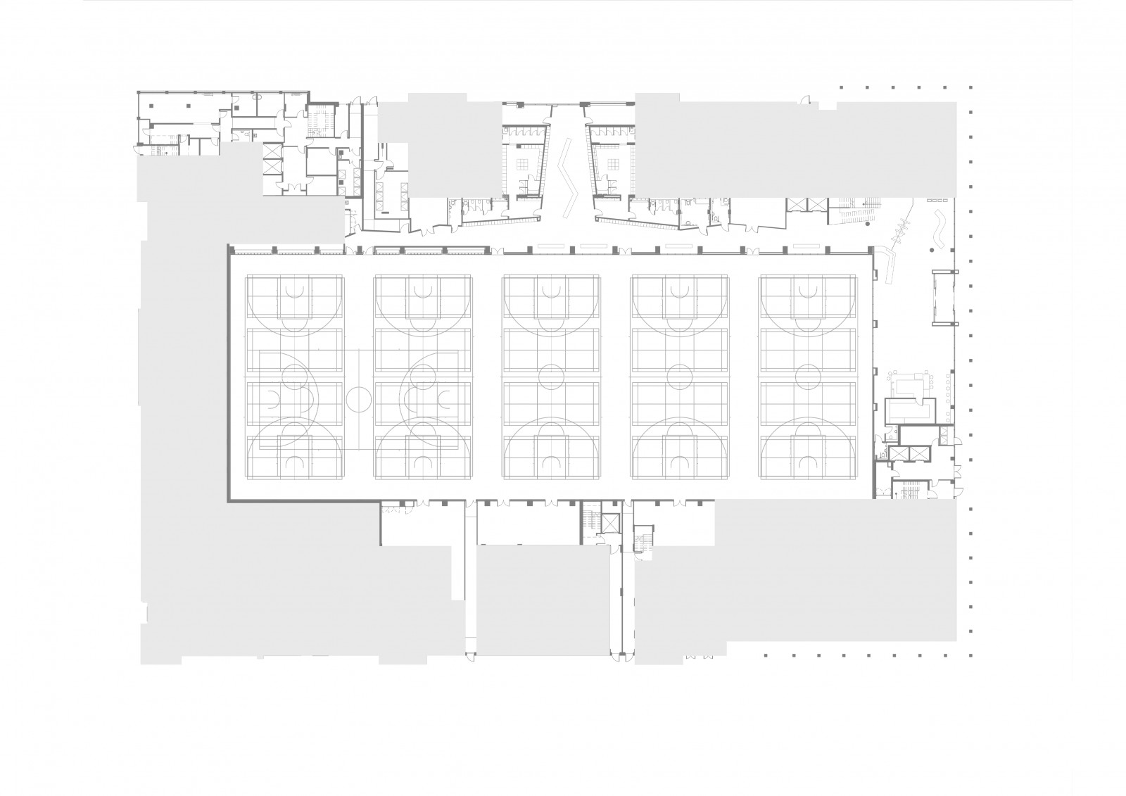
 Located at the heart of the development are the high-quality community facilities comprising a Sports Complex which includes a 20-court sports hall, Community Halls and Offices, Nursery for up to 130 children and a 2500m2 NHS Health Hub.  All facilities will be fully inclusive and accessible to the local community of Leyton and the wider community of the London Borough of Waltham Forest.

 The community facilities have been developed in consultation with LBWF Sports, Community, Nursery and NHS Commissioning Heads, sport governing body, statutory authorities and the local community to ensure that the facilities meet the community’s needs and London Borough of Waltham Forest’s operational and performance requirements.

Coronation Square is a development partnership between London Borough of Waltham Forest and Taylor Wimpey East London who will deliver the Sports, Community, Nursery, NHS Health Hub facilities.

  • Client − Taylor Wimpey East London
  • Location − Leyton, London
  • Status − Completed
  • Planning Consultant − Avison Young
  • Structural Engineer − Clarke Nicholls Marcel
  • Landscape − Outerspace
  • Project Manager − Taylor Wimpey East London
  • Quantity Surveyor − Martin Arnold